EWAY - PARIS V

commerce ERP

Année : 2015
Surface : 190m²
Maitre d'ouvrage privé
Mission: Conception avant projet, autorisations administratives, consultation entreprise

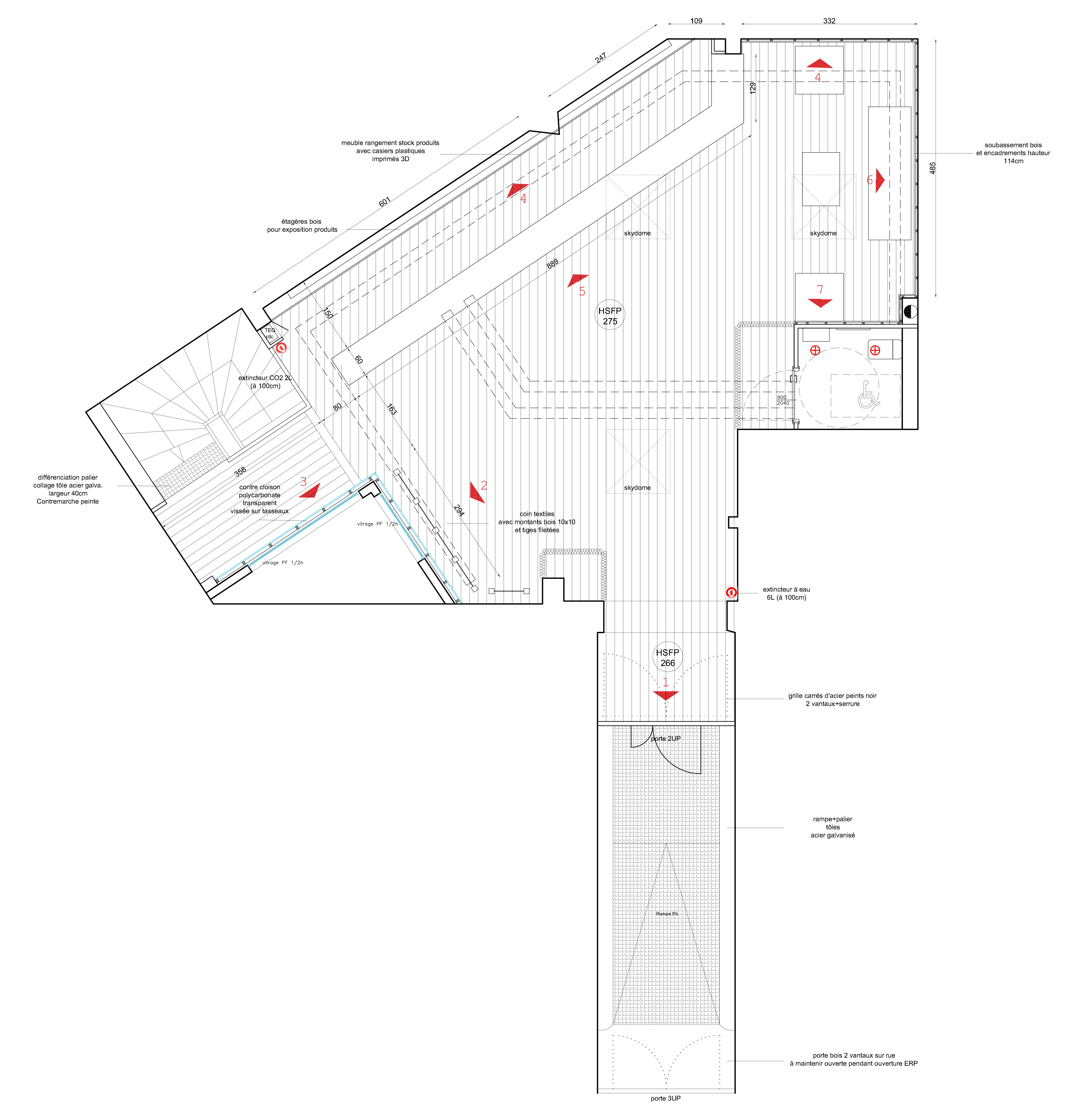
Il s’agit d’aménager un vapostore dans un local existant situé au coeur d’une ancienne cour intérieure d’un bâtiment d’habitation au 7 square Adanson dans le 5ème arrondissement de Paris
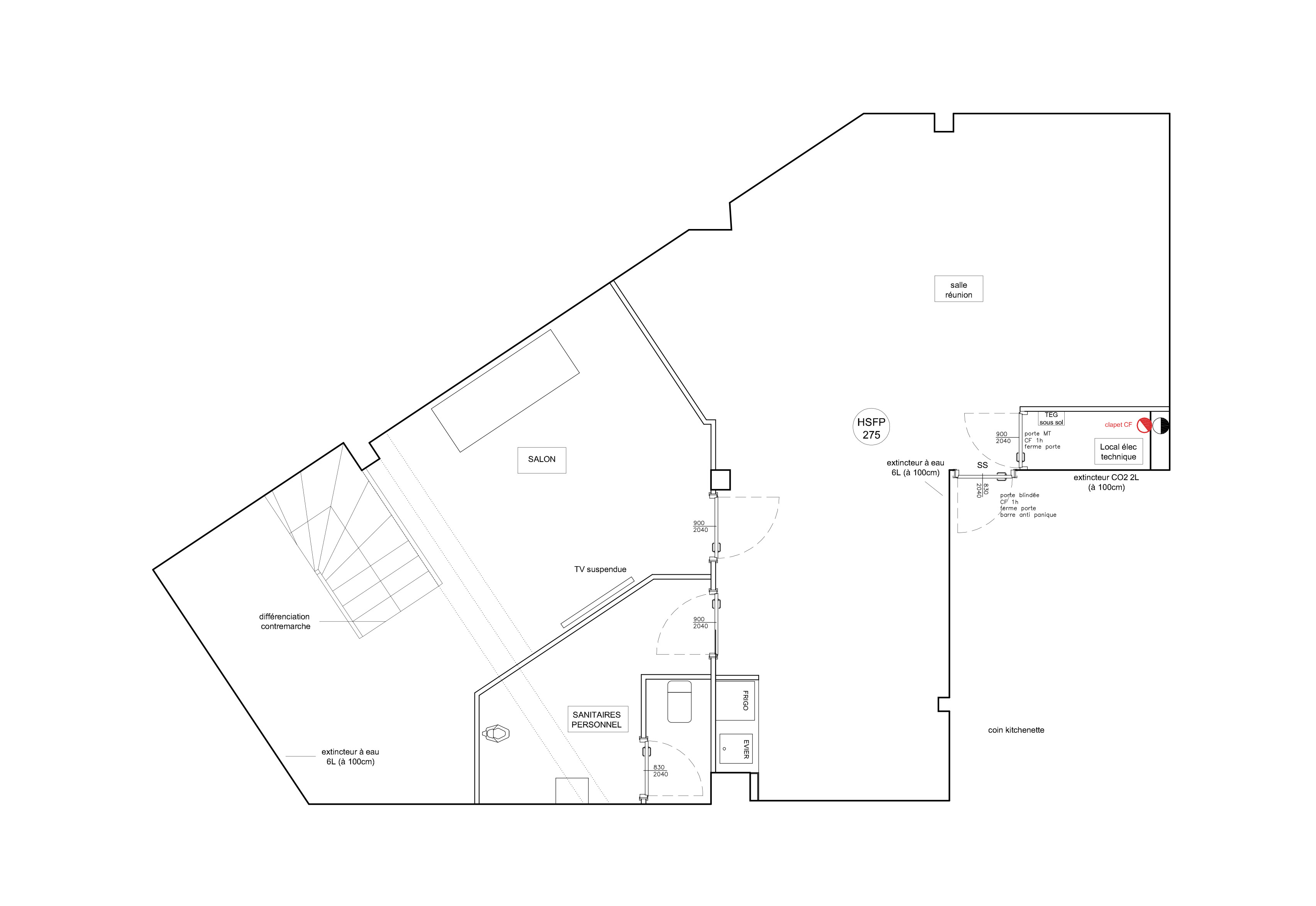
L’établissement comporte 2 niveaux reliés par un escalier existant de 2 unités de passage:
- Le niveau rez de chaussée de 100m²
- Le sous sol de 90m²
Le magasin propose en plus de son activité de vente, un service de petite restauration assise/boisson non alcoolisée en rez de chaussée et en sous sol.
L'idée a été de créer un shop dédié à l'esprit de la "VAPE", c'est à dire un espace qui s'articule autour d'un bar de 10m de longueur et qui présente les produits à la vente, tout en véhiculant un esprit de convivialité par la disposition d'Un certains nombre de canapés, fauteuils qui renforcent l'esprit "cosy"
Une volonté évidente de mettre en avant des matériaux nobles mais industriels, nous a conduit à utiliser le bois pour le sol, le bar et les présentoirs des produits, le verre pour les vitrines, le métal en fer à béton pour les portants des vêtements et le polycarbonate en parements muraux.
Il s'agit de la plus grande surface de vapostore en France

X