Flandres - PARIS XIX

architecture d'interieur

Année : 2014
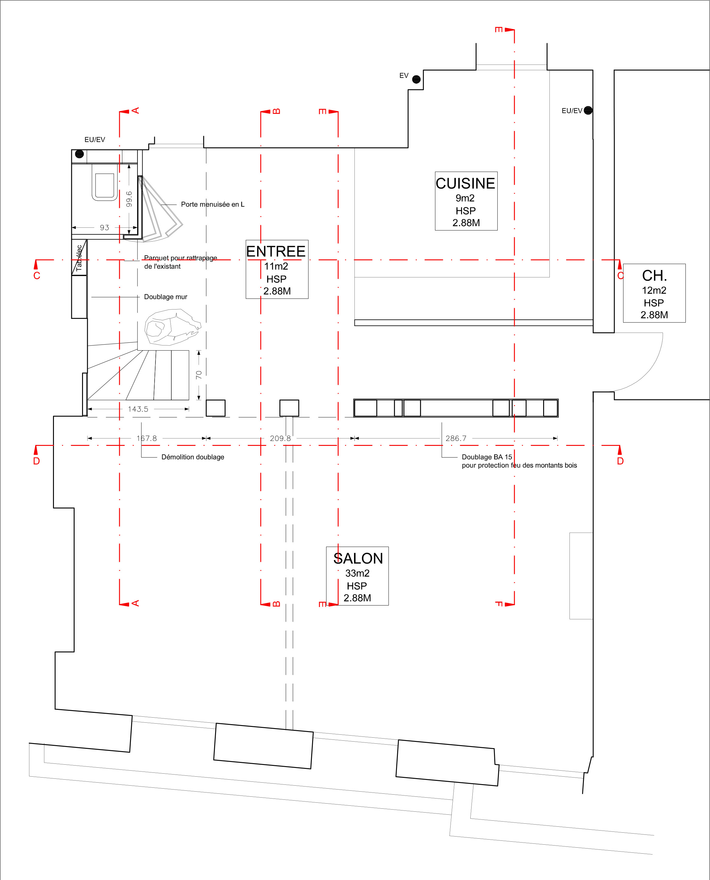
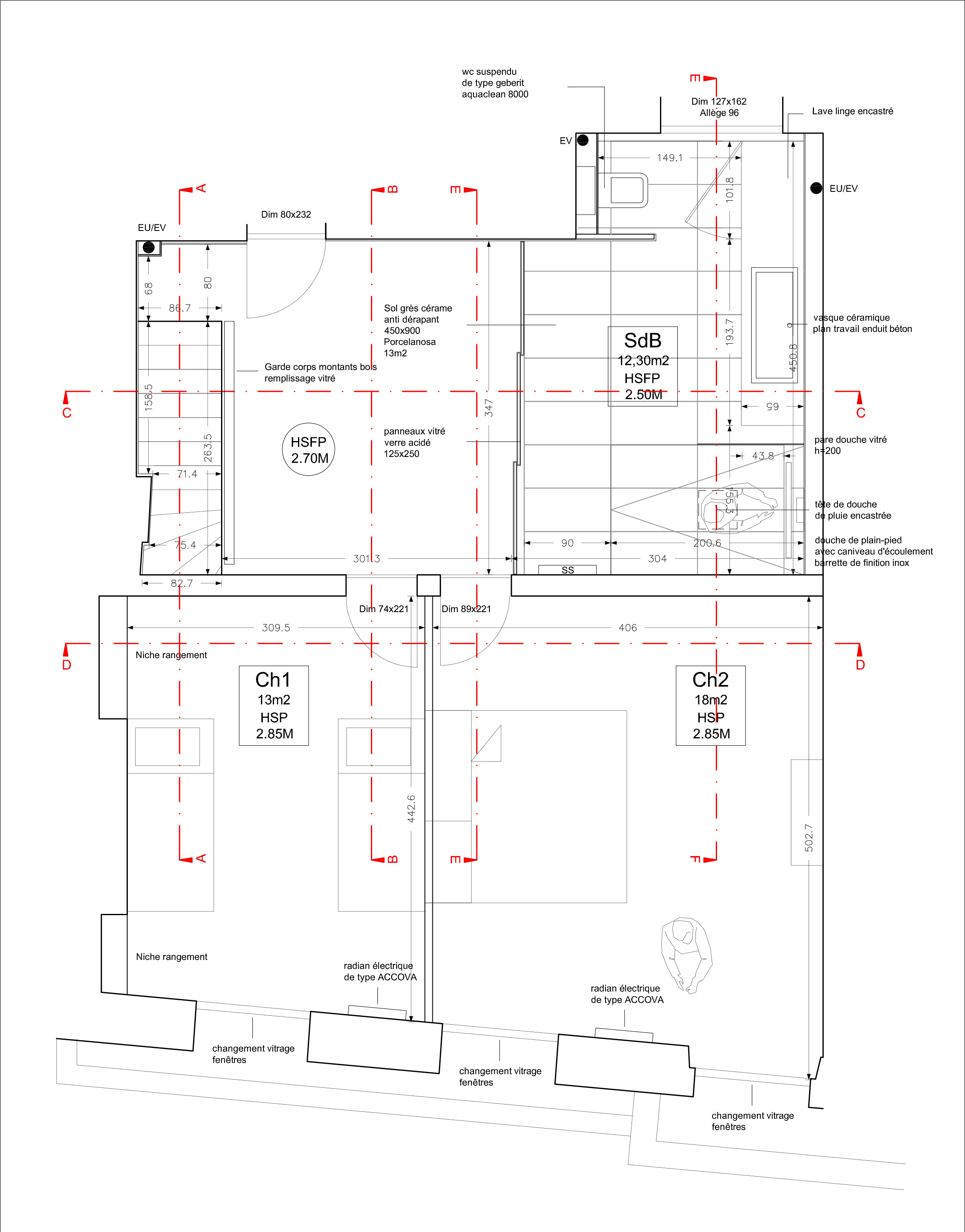
Surface : 140m²
Maitre d'ouvrage privé Mission totale : Conception projet, consultation entreprises, suivi des travaux

Ce projet a consisté à réunir deux appartements afin de créer un duplex de 140 m² destiné à un créateur de mode. L’aménagement a été pensé pour distinguer clairement les usages : le rez-de-chaussée accueille les espaces publics, tandis que l’étage est consacré aux chambres et à une salle d’eau au caractère unique.
La salle de douche a été conçue de manière décloisonnée pour offrir une grande liberté de circulation. De larges panneaux vitrés coulissants permettent de délimiter l’espace selon les besoins, tout en conservant une impression d’ouverture. Le béton ciré, appliqué au sol et aux murs, se prolonge jusqu’au palier de l’étage, renforçant l’idée d’unité et d’ambiguïté entre les espaces.
Dans les autres pièces, la sobriété et l’élégance dominent : des murs blancs lumineux associés à un parquet en chêne posé en point de Hongrie créent une atmosphère chic, apaisée et délicate, en parfaite harmonie avec l’esprit du lieu.

X