Gipons - VILLEJUIF

habitation neuf

Année : 2025-2026
Surface : 360m²
Budget : 880 000 euros HT
Mission de conception + chantier

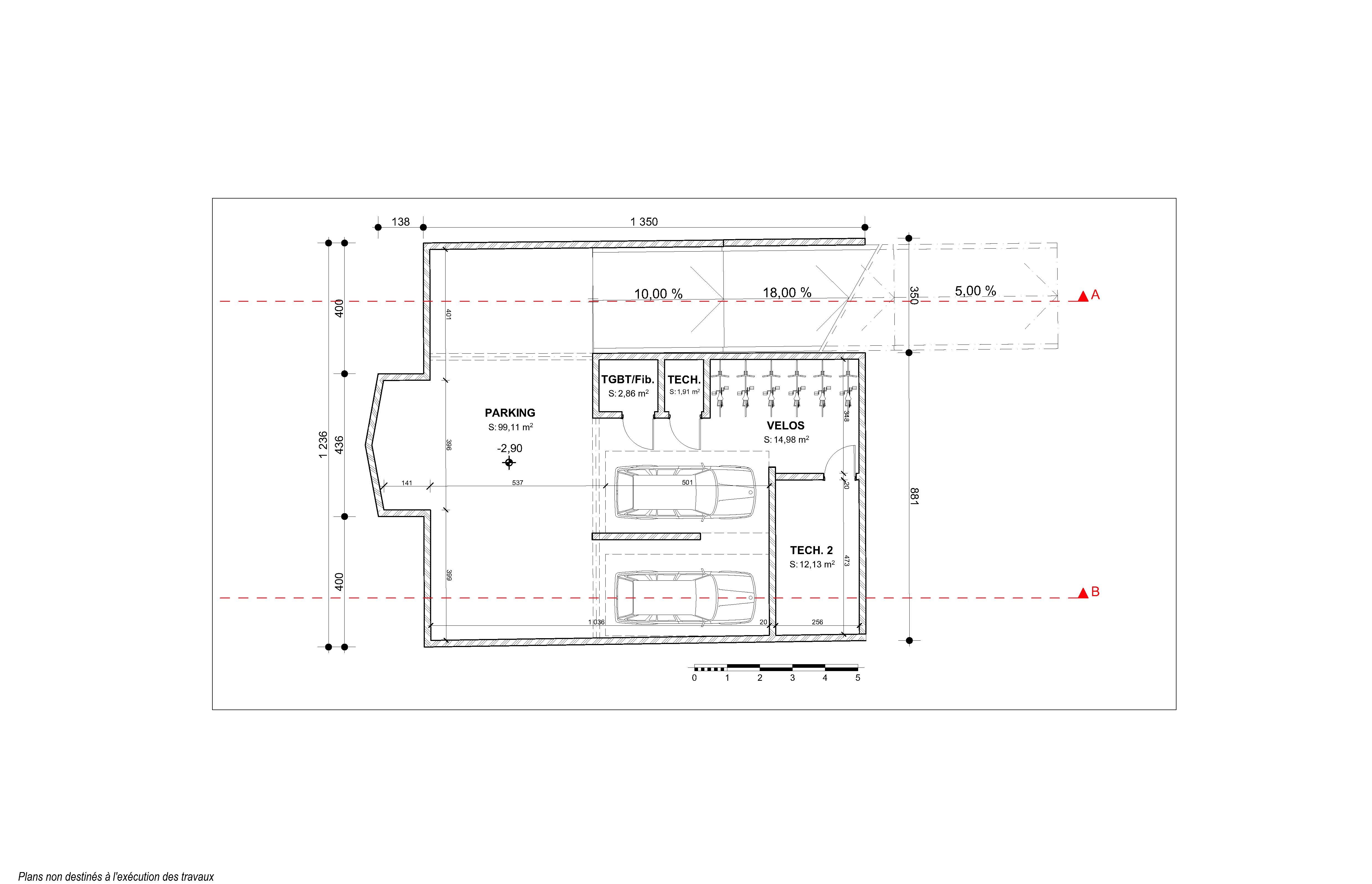
Cette parcelle de 524m² permet la création d'un batiment de logement collectif de 360m² comprenant 3 logements et des parties communes. Un jardin arboré de 290m² à l'arrière de la parcelle est accessible pour les futurs habitants. Une cours d'entrée en avant de la parcelle permet la création d'une entrée PMR sécurisée ainsi qu'une place de parking PMR.
L'appartement du RDC (80m²) est entièrement PMR et dispose de plusieures ouvertures vitrées donnant directement sur le jardin depuis le séjour.
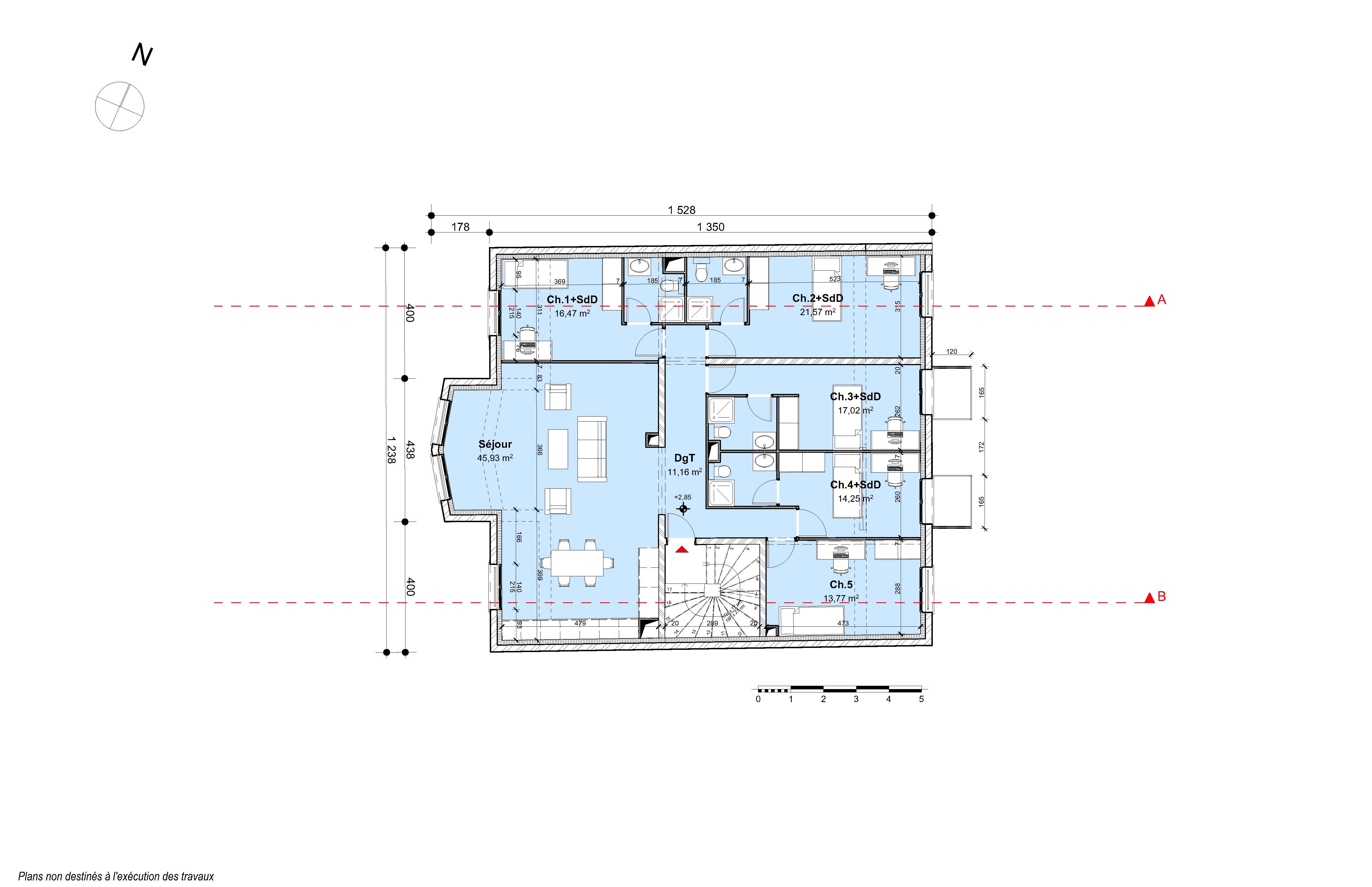
Au R+1, Un appartement de 140m² traversant est aménagé autour d'un vaste séjour et de plusieures pièces de vie.
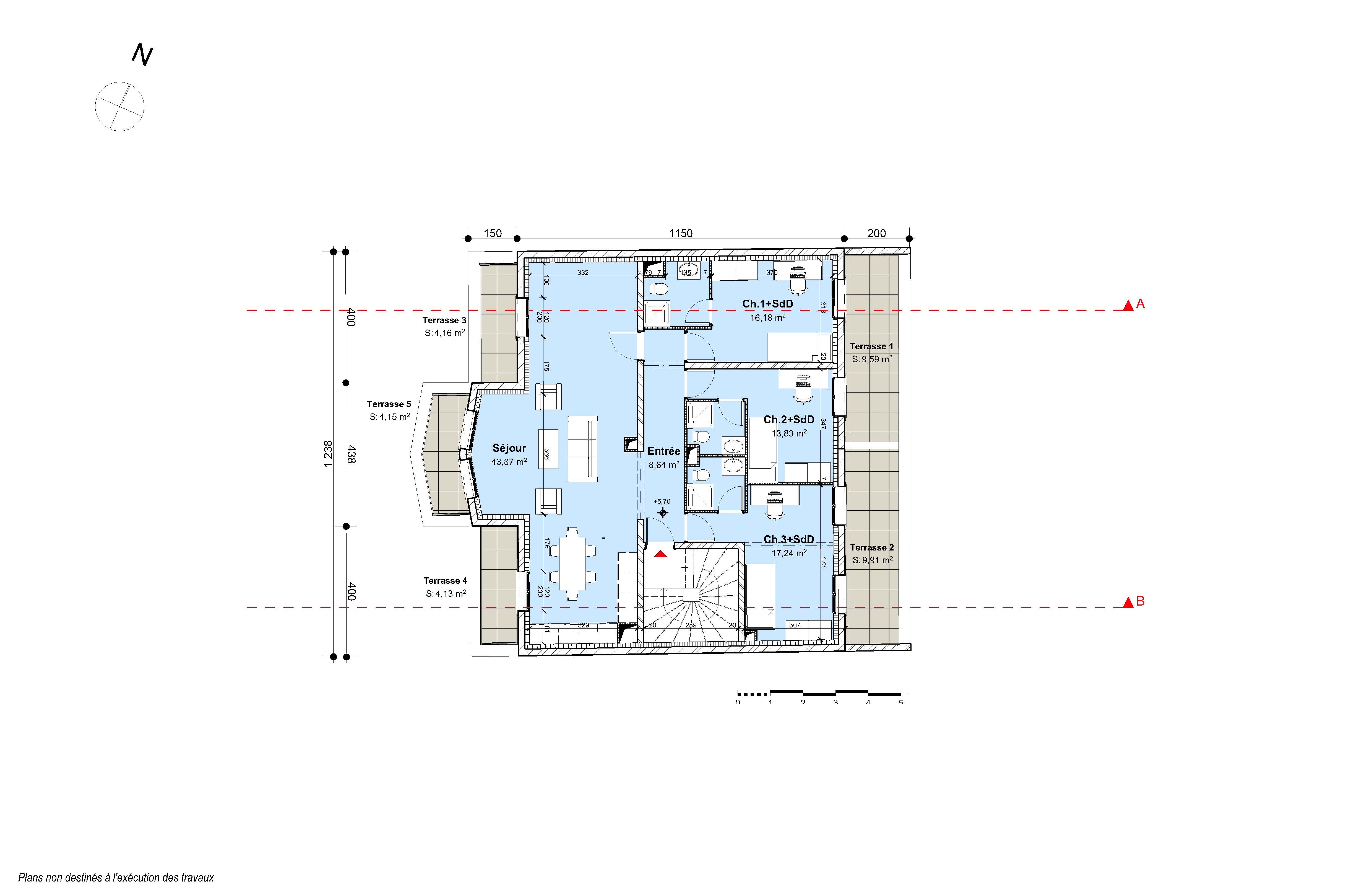
Au R+2, l'appartement de 100m² dispose de plusieures terrasses sur les façades avant et arrière du batiment.

Le façade avant du batiment, recouverte de briquettes de deux couleurs, dynamise et permet au batiment de mieux s'incrire dans la rue.

X