Bizet - VILLEJUIF

habitation neuf

Année : 2025-2026
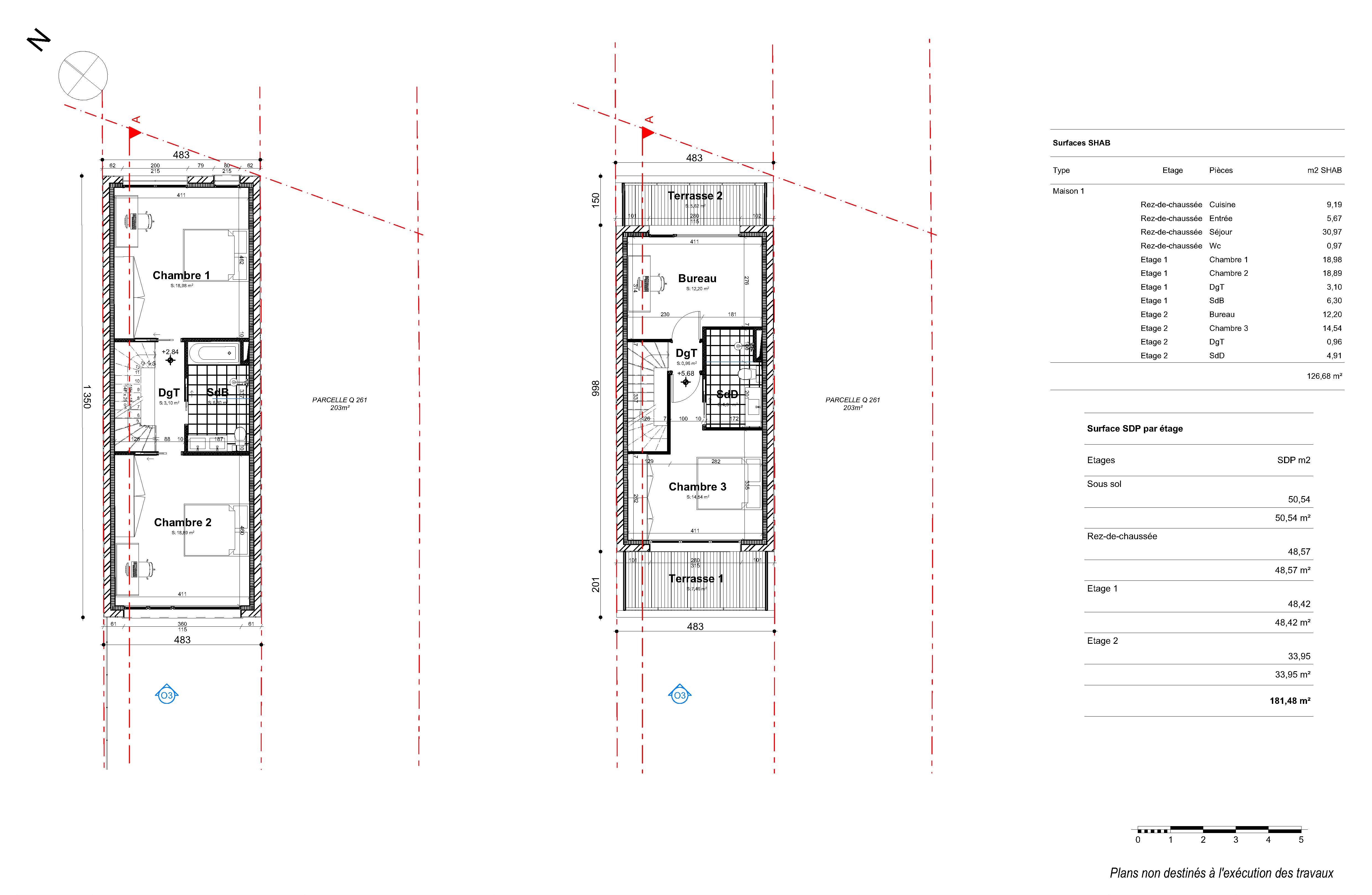
Surface : 2 maisons individuelles de 126m²
Budget : 380 000 euros HT / maison
Mission de conception

Cette parcelle à été divisée afin de permettre la création de 2 maisons individuelles.
Chaque maisons est composée de 2 niveau et d'un attique ainsi que d'un sous-sol. En retrait de la rue, les maisons disposent d'une cours avant avec place de parking et d'un grand jardin à l'arrière.
Au R+2, une suite parentale de 20 m² a été créée, comprenant une large baie vitrée menant à une terrasse de 7,5 m², offrant lumière et vues agréables sur une zone arborée. Les façades en attique sont traitées en enduit matricé teinte vénitien, tandis que le reste des façades sont traitées en parment de brique blanche, créant un contraste élégant et contemporain.

X