Morinet - VILLEJUIF

habitation neuf

Année : 2023
Surface : 150m²
Mission de conception
Maitrise d'ouvrage privée

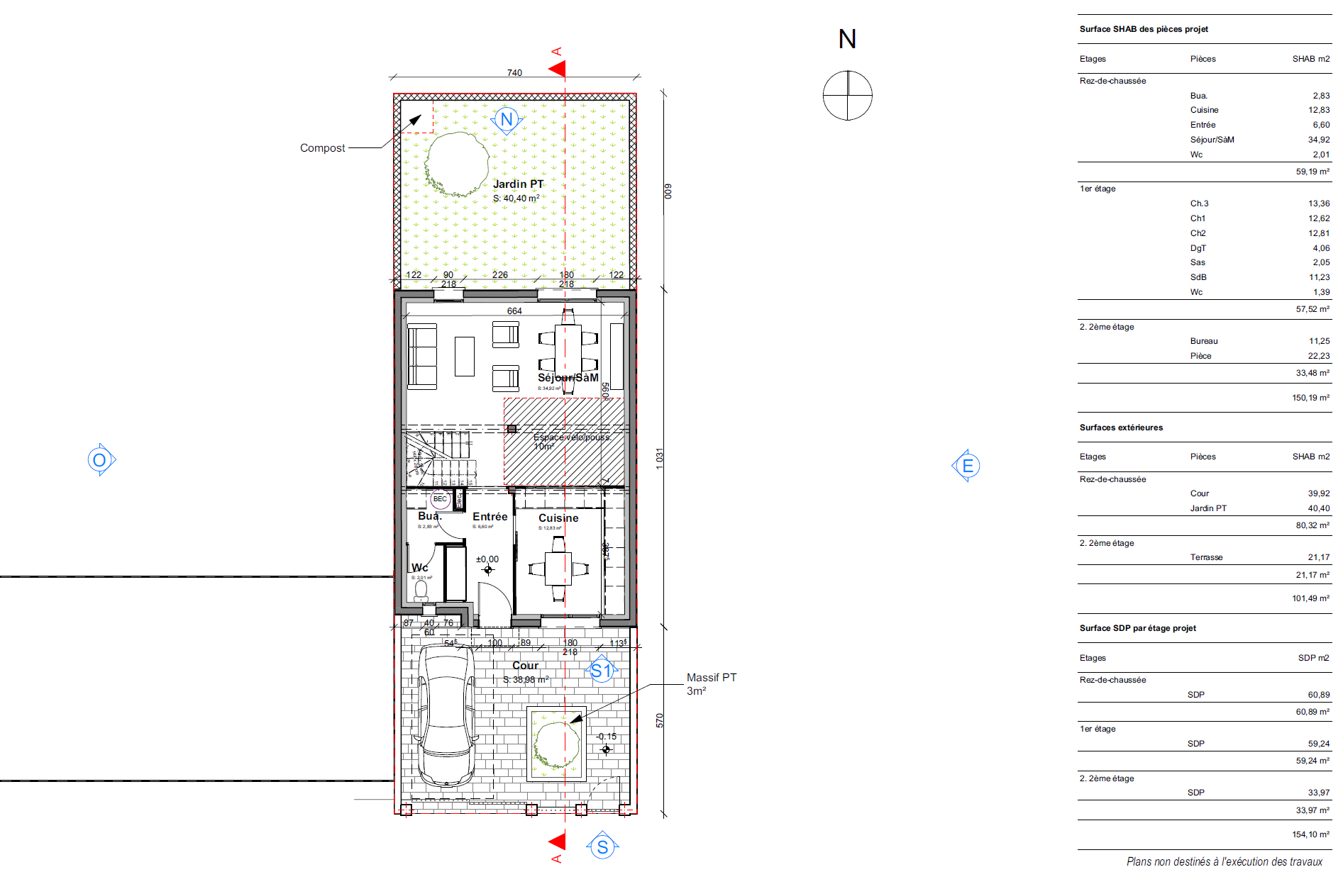
Au cœur de Villejuif, cette maison de 150 m² s’élève sur deux niveaux et s’articule autour d’espaces de vie lumineux, complétés par une terrasse qui prolonge naturellement l’intérieur vers l’extérieur. La toiture à double pente reprend les codes traditionnels du quartier tout en affirmant une écriture contemporaine.
Le projet bénéficie d’un jardin en pleine terre et d’une cour, offrant aux habitants des espaces extérieurs agréables et variés, en lien direct avec la maison.
Dans une volonté d’intégration urbaine, les volumes généraux reprennent ceux de la maison voisine, créant ainsi une continuité architecturale et une unité dans l’environnement proche. Les revêtements de façade ont cependant été repensés et modernisés, afin de donner une identité singulière au projet, entre tradition et modernité.
Cette réalisation illustre une architecture respectueuse de son contexte tout en apportant une réponse contemporaine et adaptée aux besoins de ses occupants..

X