St Roch 1 - VILLEJUIF

habitation neuf

Année : 2022
Surface : 200m²
Budget : 480 000 euros HT
Mission complète
Maitrise d'ouivrage privée

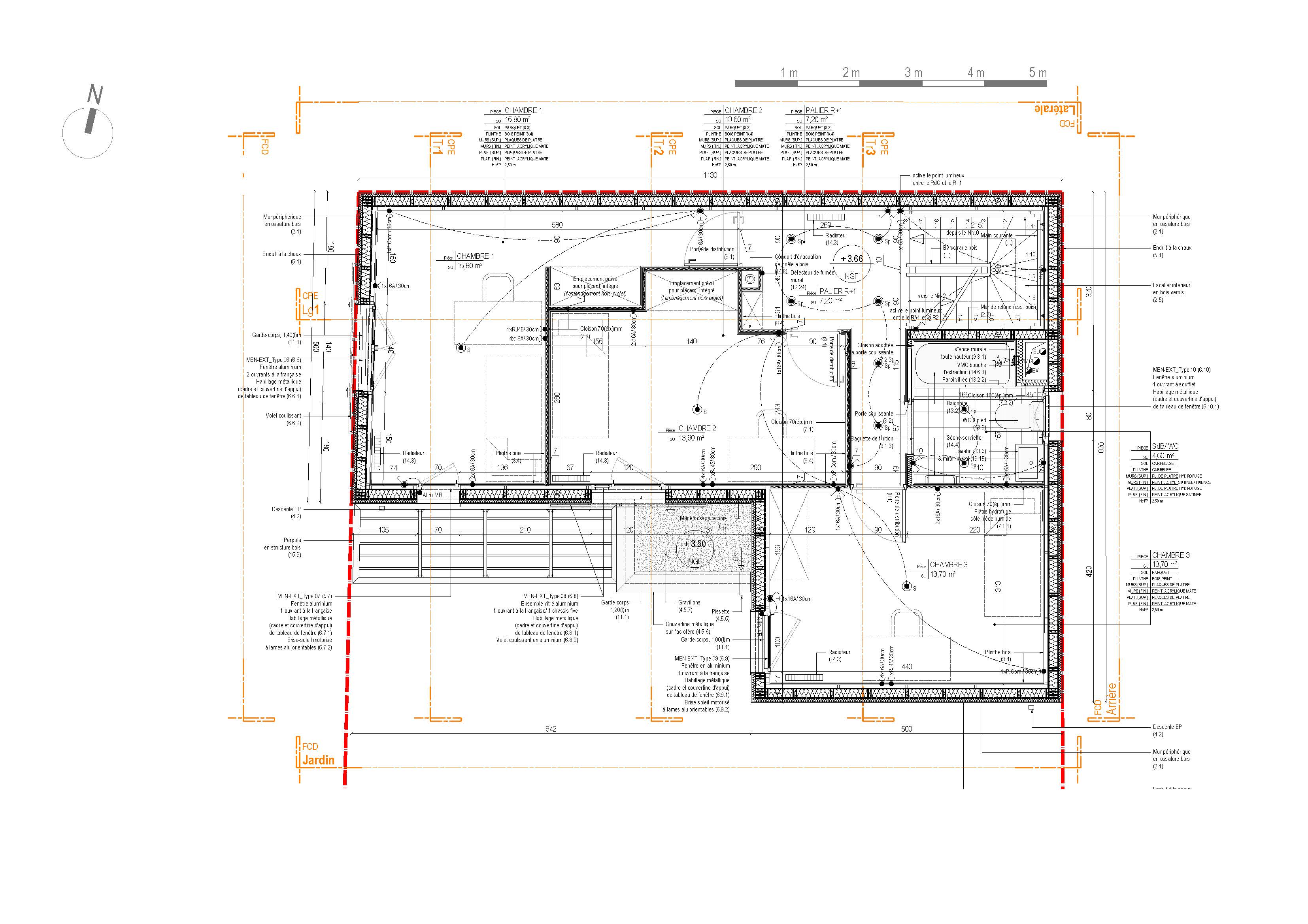
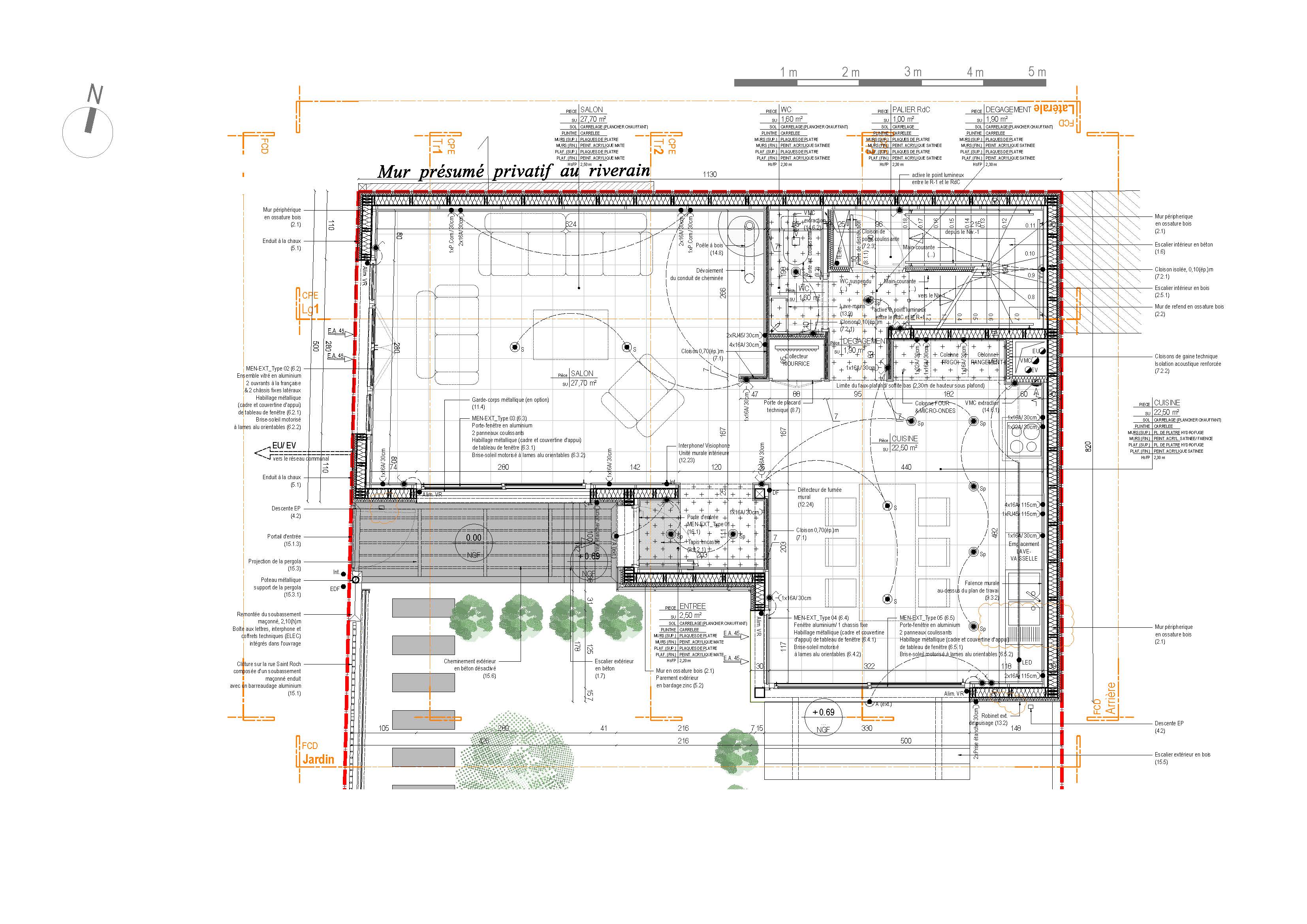
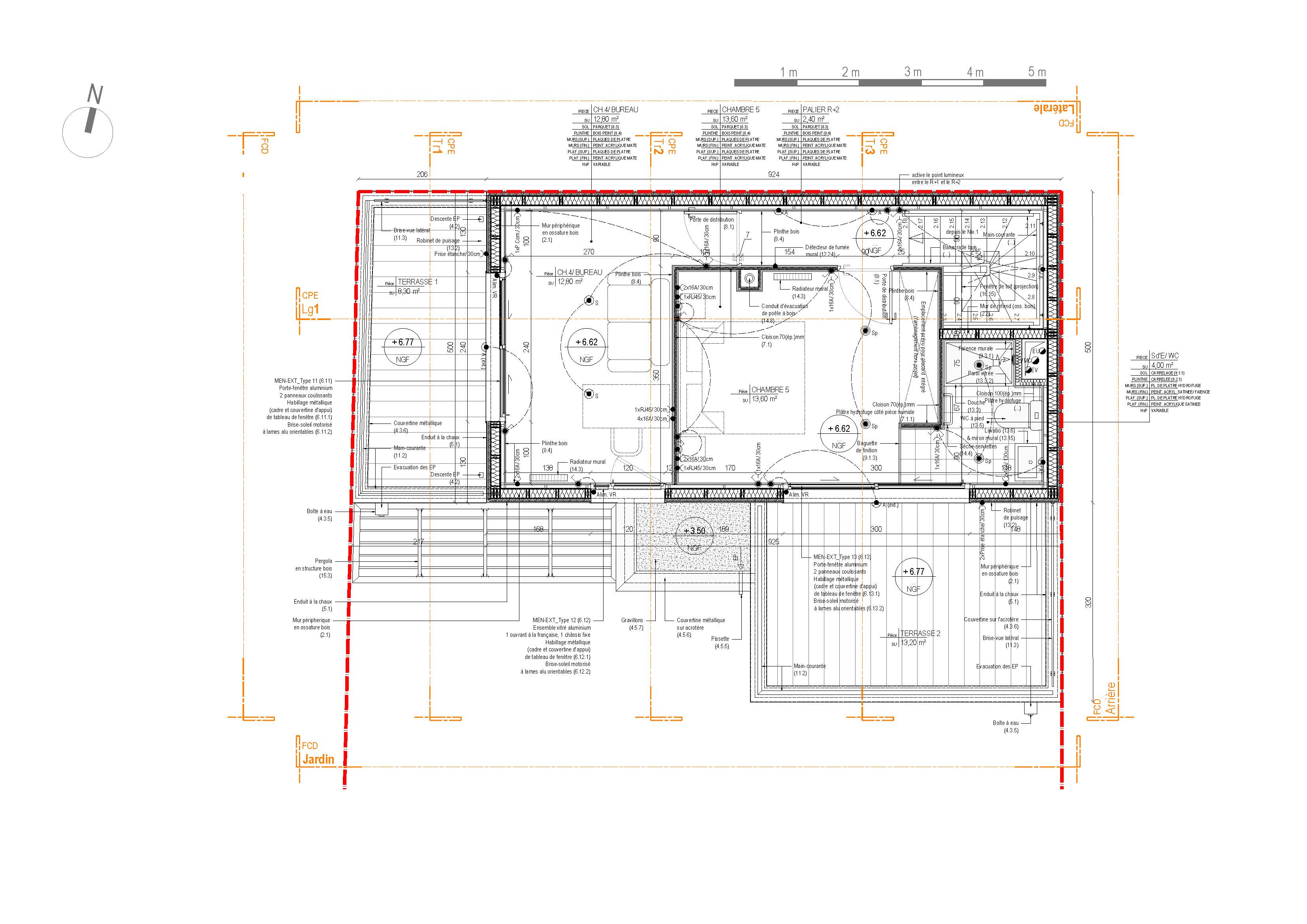
Ce projet illustre les atouts de la construction bois : rapidité d’exécution, performance énergétique et confort durable. Entièrement préfabriquée en atelier, la maison a été montée sur site en seulement 5 jours, réduisant ainsi considérablement la durée du chantier et les nuisances pour le voisinage.
L’ossature bois est associée à une isolation en fibre de bois, garantissant une excellente efficacité thermique et un confort optimal en toutes saisons. Les façades, revêtues d’enduits colorés, apportent rythme et modernité à l’architecture, tout en s’intégrant harmonieusement dans l’environnement urbain.
Avec ses 200 m², cette maison contemporaine offre des volumes généreux et lumineux, pensés pour répondre aux besoins d’une vie familiale moderne, en associant durabilité, esthétique et bien-être.

X