Alhyange - PARIS X

bureau

Année : 2016
Surface : 135m²
Mission complète
Budget : 170 000 euros HT
Maitrise d'ouvrage privée

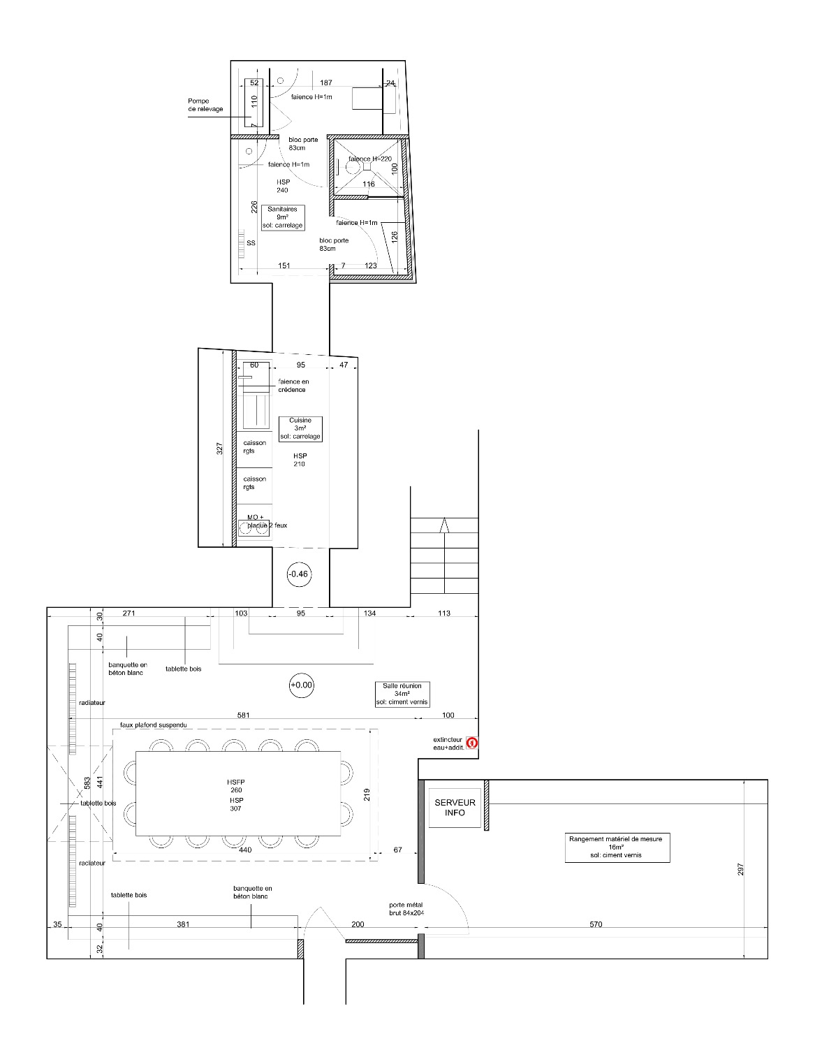
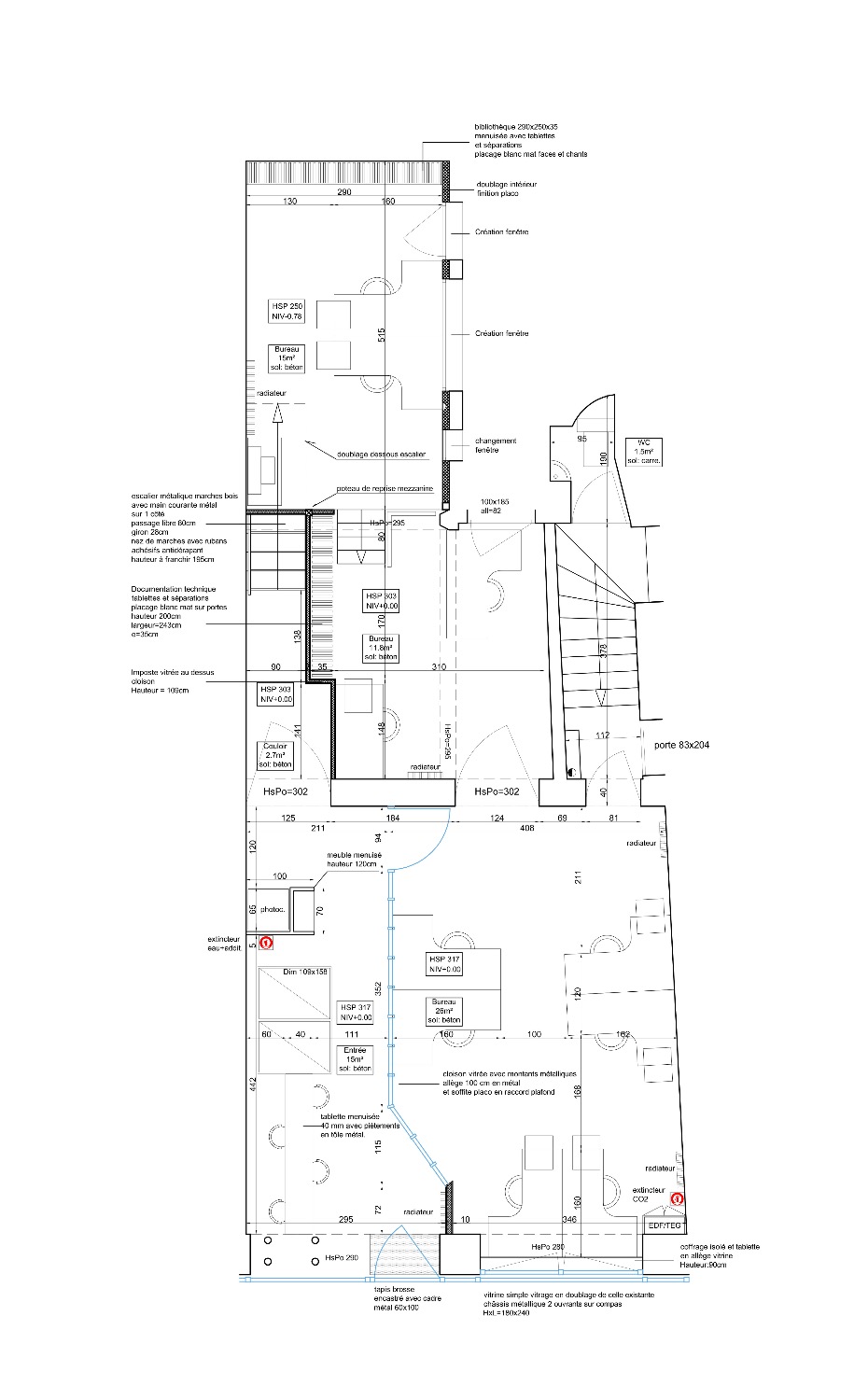
Il s’agissait avant tout de définir une organisation cohérente associée aux activités de chacun, entre les espaces de bruit et les espaces de calme, ceux ci ne devant peu ou pas interférer. Le besoin de calme et de quiétude pour les ingénieurs nécessitant de s’isoler réellement de l’activité plus dérangeante du pôle administratif. Il a alors été imaginé de créer une “colonne vertébrale” vitrée qui permettrait de délimiter physiquement les espaces tout en intensifiant l’effet de profondeur des bureaux. Au rez de chaussée, l’espace d’entrée distribue le bureau d’étude et l’espace administratif en mezzanine. Sa position centrale en fait le lieu de convivialité entre les équipes qui peuvent se rencontrer au cours de la journée autour d’un café ou de la photocopieuse
A droite, le bureau des ingénieurs se développe longitudinalement à la paroi vitrée sur 3 espaces distincts mais ouverts. Il bénéficie d’une double orientation rue/cour intérieure permettant d’aménager des coins intimes pour les équipes de travail et évitant ainsi l’effet pervers de l openspace bruyant et impersonnel. L'isolement phonique vis à vis des nuisances de la rue a été obtenu par une double façade vitrée en décalage de la vitrine existante.
A l’étage, sur la mezzanine, l’espace administratif est reculé mais en étroite relation avec l’entrée. Le plancher en ossature bois a été fortement isolé par un complexe en LM placé entre les solives et placo double pot sur suspentes antivibratiles. Une sous couche ASSOUR a également été mise en place sous le sol vinyl 2TEC2.
En sous sol, outre les pièces secondaires telles que cuisine et salle d’eau, il a été aménagé la salle de réunion dans la plus grande pièce voutée. Un travail particulier sur le faux plafond a été effectué pour corriger les effets de réverbération du son. Ce dernier, constitué de plaque de plâtre perforées est décollé de la voûte. Des éclairages indirectes par LED viennent renforcer avec légèreté l’effet de suspension et procurent une ambiance lumineuse tamisée.
D’une manière générale, au regard de la qualité architecturale des lieux mêlant pierre apparente, bois et métal, l’intervention tant sur le plan de l’éclairage que des matériaux à mettre en oeuvre devait être réalisée de manière délicate et déliée avec une préoccupation constante de mise en valeur du patrimoine existant.

X