Thibert - VILLEJUIF

habitation extension

Année : 2020
Surface : 47m²
Budget : 160 00 euros HT
Mission : Conception avant projet - dépôt pièces administratives

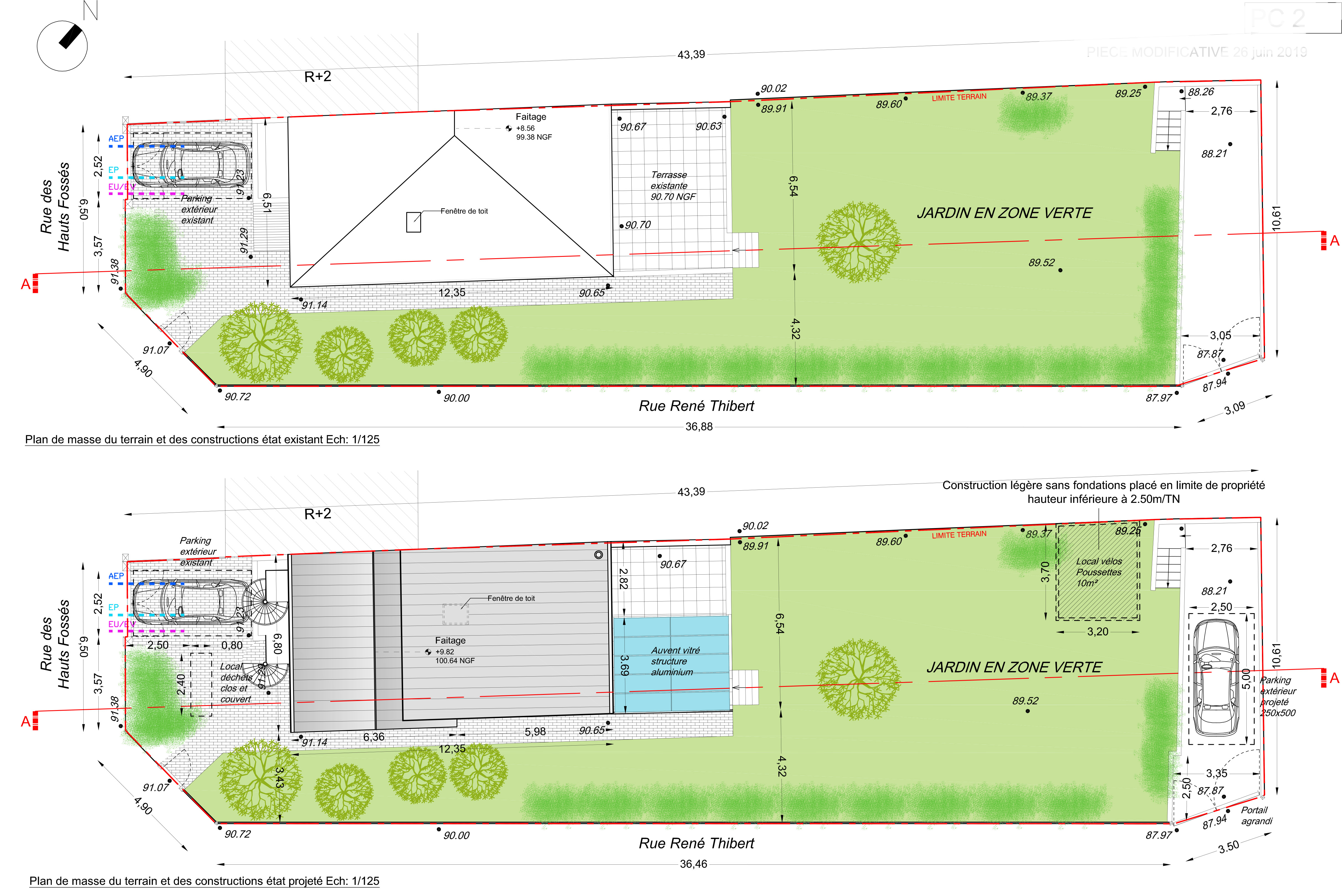
Dans cette maison de ville, le projet a consisté à transformer les combles inexploités en un véritable appartement indépendant, pensé comme un espace de vie confortable et lumineux. Un nouvel escalier extérieur a été ajouté, permettant un accès direct et privatif au logement.
Les façades ont été reprises afin d’offrir une image harmonieuse et contemporaine à l’ensemble, tout en respectant l’identité du bâti existant. La toiture et les ouvertures ont également fait l’objet d’une rénovation complète, améliorant à la fois l’esthétique, la performance énergétique et la luminosité intérieure.
L’intervention a permis de redonner une nouvelle vie à la maison, en optimisant son potentiel et en créant un espace distinct, adapté aussi bien à un usage familial qu’à une location indépendante.

X