Subway - MASSY

commerce ERP

Année : 2022
Surface : 74m²
Budget : 90 000 euros HT
Mission complète
Maitrise d'ouvrage privée

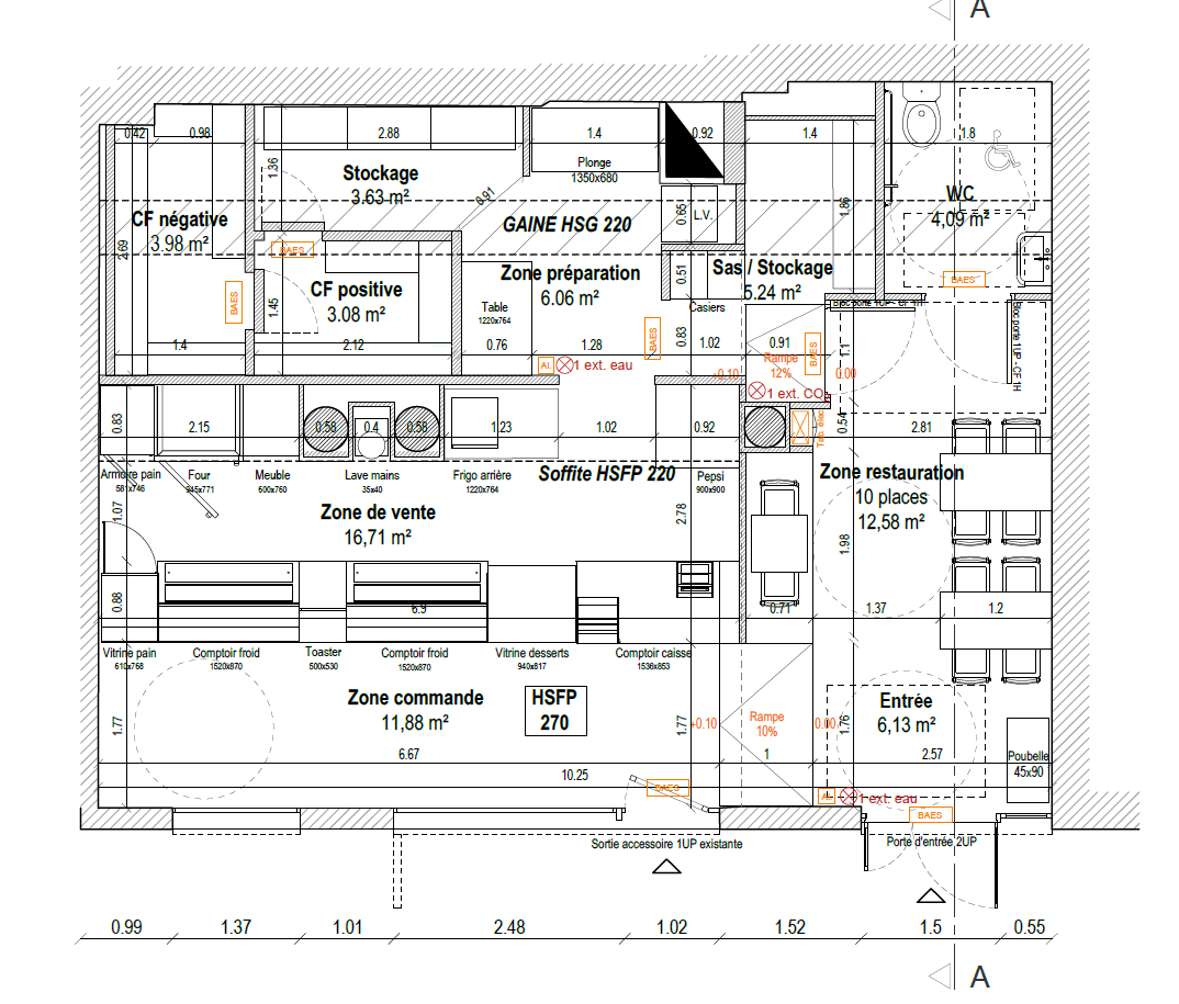
Ce projet consiste en la réalisation d’un espace de restauration rapide pour la chaîne Subway à Massy. L’aménagement intérieur a été conçu pour répondre strictement au cahier des charges de la marque, en optimisant la circulation des clients et du personnel.
La zone accessible au public comprend un espace de commande et de vente, ainsi qu’une zone de restauration conviviale et fonctionnelle. Une zone non accessible au public a été aménagée pour les activités de stockage, de préparation des aliments et les sanitaires, garantissant efficacité et conformité aux normes.
Le projet inclut également la modification de la façade du local commercial, situé au rez-de-chaussée d’un immeuble, afin d’assurer une identité visuelle cohérente avec la marque tout en s’intégrant harmonieusement dans l’environnement urbain.

X