Taine - PARIS XII

architecture d'interieur

Année : 2017
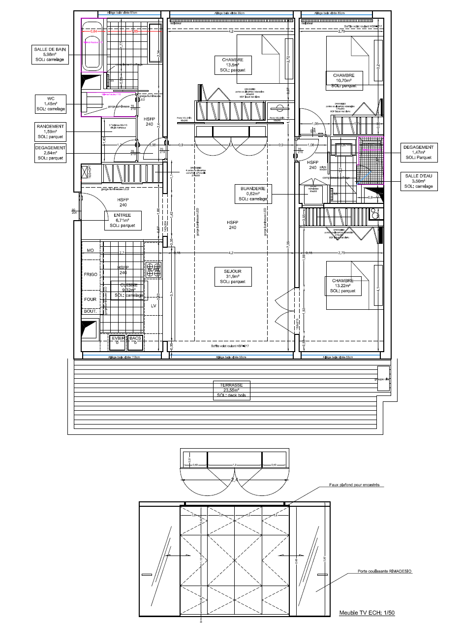
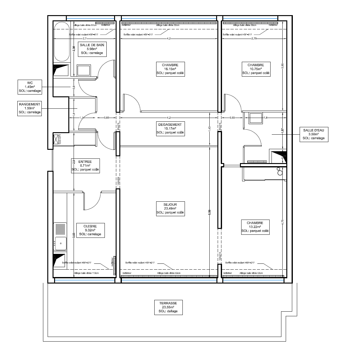
Surface : 92m²
Mission totale
Budget : 110 000 euros HT
Maitrise d’ouvrage privée

Cet appartement de 92 m², situé au cœur du 12ᵉ arrondissement, a été intégralement rénové afin d’offrir un cadre de vie contemporain et raffiné.
La cuisine a été conçue sur mesure dans une configuration semi-ouverte, favorisant la fluidité entre le salon et la salle à manger. Dans la pièce de vie, un meuble TV intégrant un bureau et une porte dissimulée derrière des panneaux miroirs coulissants crée un jeu subtil entre fonctionnalité et design, tout en donnant accès à une chambre supplémentaire.
L’univers intérieur s’enrichit de détails singuliers, comme l’installation d’une porte balinaise en bois massif, encadrée d’un mur habillé de planches rustiques, qui mène à la chambre du fond. Cette dernière a été pensée lumineuse et fonctionnelle, avec des placards sur mesure parfaitement intégrés.
Le projet inclut également la reprise des salles de bain et de la terrasse, apportant confort, cohérence et modernité à l’ensemble.
Résultat : un appartement élégant et chaleureux, où chaque détail architectural et décoratif participe à l’harmonie générale.

X